CAD (0)
▾
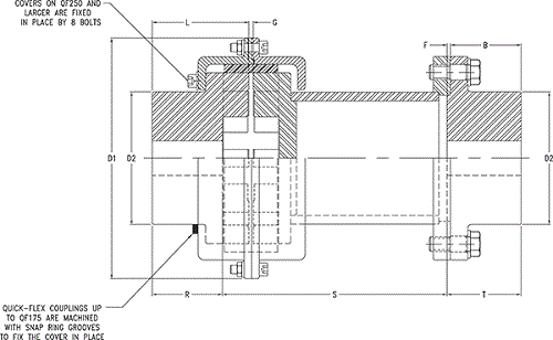
Quick-Flex Elastomeric Couplings
Durability for the Long Haul
Quick-Flex elastomeric couplings are durable enough to perform in harsh environments, yet need minimal maintenance. This type of coupling is easy to install and requires no lubrication. The insert can be changed without removing the hubs. Thanks to the versatility of the design, elastomeric couplings are direct replacements for most comparable couplings.
Durability for the Long Haul
Quick-Flex elastomeric couplings are durable enough to perform in harsh environments, yet need minimal maintenance. This type of coupling is easy to install and requires no lubrication. The insert can be changed without removing the hubs. Thanks to the versatility of the design, elastomeric couplings are direct replacements for most comparable couplings.
Click here to configure your Quick-Flex Elastomeric Coupling.
Unit of Measure
Key Dimensions
Units of Measurement |
N/A Metric |
Drive Shaft Size [mm] |
N/A 50 |
Driven Shaft Size [mm] |
N/A 50 |
Shaft Separation [mm] |
N/A 10 |
Motor Rating [kW] |
N/A 10 |
Shaft RPM |
N/A 100 |
Ambient Temperature [°C] |
N/A < 100 |
Service Factor is known? |
N/A Yes |
Service Factor |
N/A 3 |
Actual Torque [Nm] |
N/A 955 |
Design Torque [Nm] |
N/A 2865 |
Stainless Steel Options |
N/A None |
Interference Fit |
N/A No |
Coupling Max RPM |
N/A 6000 |
Axial Misalignment [mm] |
N/A 2.95 |
Angular Misalignment [°] |
N/A 2 |
Radial Misalignment [mm] |
N/A 0.97 |
Assembly Image |
N/A
![]() QFSTDVSP |
Insert Image |
N/A
QFINSERT |
Cover Image |
N/A
![]() QFVSPCOVER |
Hub (x1) |
N/A QF50X50MM |
Hub (x1) |
N/A QF50X50MM |
Cover (x1) |
N/A QF50VSPCOVER |
Insert (x1) |
N/A QF50TINSERT |
Spacer Type |
N/A No Spacer |
Weight [kg] |
N/A 9.1 |
Weight (Insert) [kg] |
N/A 0.36 |
Other Dimensions
A [mm] |
N/A 154 |
A (Cover) [mm] |
N/A 87.884 |
B (Cover) [mm] |
N/A 185.42 |
C [mm] |
N/A 63.6 |
C (Cover) [mm] |
N/A 141.732 |
D1 [mm] |
N/A 193.5 |
D1 (Cover) [mm] |
N/A 139.192 |
D2 [mm] |
N/A 89.41 |
D3 [mm] |
N/A 114.05 |
E (Cover) [mm] |
N/A 60.45 |
F [mm] |
N/A 54.86 |
Gmax [mm] |
N/A 4.6 |
Gmin [mm] |
N/A 2.67 |
H [mm] |
N/A 75.18 |
L (Insert) [mm] |
N/A 61.214 |
L1 [mm] |
N/A 45.21 |
M (Insert) [mm] |
N/A 128.27 |
N (Insert) [mm] |
N/A 41.656 |
P [mm] |
N/A 78.2 |
X [mm] |
N/A 42.164 |

